Copy from Here (this label will be hidden)
Add your 3 titles here (this label will be hidden)
Add your 3 lists here (this label will be hidden)
- 1500 x 1500 x 40mm
- CORNERÂ Drain Position
- Under Support Required
- Can be trimmed by 50mm off each edge
- 10 Year Guarantee
- BBA Approved
- Concrete Subfloor
- Tiled Floor Finish
- Wet Rooms
- Level Access
- Raised on Platform
- Underfloor Heating
- Use with Wheelchairs
(min tile size 50 x 50mm)
- Vinyl Floor Finish
- Micro Cement
- Fitting Direct on Joists
To Here (this label will be hidden)
Fundo floor elements from wedi offer a reliable and efficient solution for the construction of waterproof, floor level showers. Featuring a fitted and sealed floor drain (available separately), a supplementary factory applied waterproof coating and a predefined slope, they require far less work on any project and therefore save the installer a lot of time.
For classic point drainage in the shower, wedi offers the wedi Fundo Primo floor elements in a wide variety of sizes.
Whether square or rectangular, placed in the middle of the room or in the corner, they offer the ideal solution for every space and can easily be rounded out to form a complete shower area with the help of wedi building boards and other wedi system components.
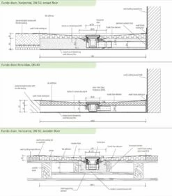
Whilst the Wedi Fundo Primo is primarily designed for use in a concrete screed floor it can be laid on top of a wooden floor (excluding traditional floor boards). The drain is laid inside the floor structure and will need supporting with a concrete screed infill or the Wedi Fundo drain substrate. Please see instructions. Alternatively for suspended wooden floors (traditional floorboards) please see the Wedi Fundo Ligno wet room former
Drain Options:
A drain is not included as standard with the Wedi Fundo Primo, therefore it will need to be purchased if required. A number of options are available as follows:
DN50 Square: Depth below tray 90mm – Flow rate 0.80 l/s / 48.0 l/m
DN50 Round: Depth below tray 90mm – Flow rate 0.80 l/s / 48.0 l/m
DN40 Mini Max Low profile: Depth below tray 57mm – Flow rate 0.50 l/s / 30.0 l/m
To make installation of the drain easier a drain sub-structure is optionally available. The substructure supports the drain body, eliminating the need to cement the drain body in.
Please note: The drain sub-structure IS NOT SUITABLE for use with LOW PROFILE wastes.
Waterproofing/Sealing:
The Wedi Fundo Primo wet room tray former is itself 100% waterproof, including the core. This means that should it become damaged the tray former is still waterproof. If a Wedi Fundo Primo tray is joined to Wedi Building Board using the Wedi 610 Hybrid Adhesive and Sealant, as per the manufacturer’s instructions, then that joint will be 100% waterproof. However, we strongly advise the taping of all joints with waterproof tape, and then sealing the whole area with the Wedi Sealing Kit to provide extra assurances on the waterproofing and peace of mind for years to come.

Â
























Reviews
There are no reviews yet.